
Je herkent het vast wel: je wil dolgraag een gezellige, bloeiende voortuin, maar die parkeerplek voor de deur of ruimte voor de fietsen is toch ook wel erg praktisch. In Nederland is het vaak een kwestie van de boel volledig bestraten, of de auto toch een straat verderop zetten. Maar de Japanse architectuurstudio HOAA bewijst met het ‘House in Nakano’ in Tokio dat je geen concessies hoeft te doen. De briljante oplossing? Je tilt de tuin gewoon de lucht in!
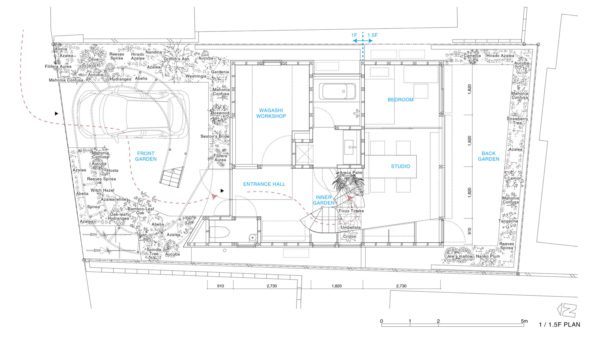
Dit opvallende huis van 96 vierkante meter staat in de dichtbebouwde wijk Nakano en is ontworpen door Hiroyuki Oinuma, de oprichter van HOAA. Hij creëerde het pand als woonhuis voor zijn eigen gezin, met tegelijkertijd ruimte voor zijn architectuurstudio. Omdat het kavel aan drie kanten was ingesloten door buren, bleef alleen de noordkant aan de straat over voor grote ramen. En dat bracht een uitdaging met zich mee.
De zwevende ‘Kazari’ tuin op palen
Ramen op het noorden zijn in Japan (net als hier) niet erg populair, omdat ze vaak weinig direct zonlicht binnenlaten en een wat somber uitzicht opleveren. Oinuma wilde echter dolgraag vanuit zijn woonkamer uitkijken op groen. Zijn oplossing is even simpel als spectaculair: hij ontwierp de ‘Kazari Garden’ (Kazari is het Japanse woord voor ornament of decoratie).
Dit is een lusvormig, metalen terras vol plantenbakken dat op hoge metalen palen is gezet. Omdat de tuin op de eerste verdieping ‘zweeft’, vangt het daar wél het zonlicht op dat via het grote raam van de eetkamer naar binnen schittert. En het allermooiste van dit ontwerp? Doordat de tuin op palen staat, blijft de ruimte op de begane grond aan de straatkant volledig vrij. Dat is de perfecte, ruimtebesparende oplossing voor iedereen die een overdekte parkeerplaats voor de deur wil, maar toch wil genieten van een weelderige voortuin!
Slim spelen met een compacte ruimte
Het zwevende, metalen wandelpad is niet alleen een plek voor planten, maar vormt via een trap ook direct de indrukwekkende hoofdentree naar de eerste verdieping van de woning. Zodra je binnenstapt, sta je in een royale, open ruimte met een woonkamer, eetgedeelte en keuken. Aan de achterkant van het huis, net een paar treden hoger, bevinden zich twee slaapkamers.
Tussen de zwevende tuin en de leefruimte heeft de architect een verhoogd gedeelte gemaakt dat doet denken aan een engawa (een traditionele Japanse veranda). Dit hoekje omlijst een prachtig, langwerpig raam van stoer draadglas.
Op de begane grond vind je het kantoor en de werkplaats van HOAA, plus een extra slaapkamer. Deze benedenverdieping kijkt uit op een intieme achtertuin. Ook is er slim gebruikgemaakt van de ruimte onder de binnentrap: hier is een grote plantenbak geplaatst die prachtig wordt verlicht door een dakraam.
Industrieel ontmoet warm hout in een mini-museum
Het interieur is een verrassende mix van strakke industriële elementen en warme, natuurlijke materialen. Je ziet er bijvoorbeeld een roestvrijstalen aanrechtblad en koperen buizen die als lampen dienen. Dit vormt een schitterend contrast met het donkere hout dat de muren en plafonds bekleedt.
Datzelfde donkere hout is gebruikt voor enorme, ingebouwde kastenwand rondom de trap en in de woonkamer. Voor de familie Oinuma is dit veel meer dan opbergruimte. Het is een plek om hun verzameling boeken, keramiek, planten en foto’s tentoon te stellen. “We zien deze dierbare spullen als een weergave van ons leven tot nu toe,” vertelt Oinuma. “Door onze looproutes te omringen met deze kasten, wilden we een sfeer creëren die voelt als een klein kunstmuseum, wat ons motiveert om bewuster te leven.”
Door de speelse split-level indeling (waarbij vloeren op verschillende hoogtes liggen) heb je vanuit bijna elke hoek in het huis wel zicht op een stukje tuin. “Als je door het huis beweegt, ontvouwt zich een poëtisch landschap, bijna als in een korte film,” aldus de trotse architect.
Groen van binnen en van buiten
Niet alleen de hangende tuin en de planten onder de trap ademen liefde voor de natuur; ook de buitenkant van het pand is hierop afgestemd. House in Nakano is afgewerkt met een mosgroen stucwerk, een kleur die Oinuma speciaal uitkoos zodat de woning perfect opgaat in de omringende planten. Een licht hellend metalen dak, dat aan de binnenkant zorgt voor een sfeervol gebogen plafond boven de eettafel, maakt het plaatje helemaal af.
















📬 Niets missen van Mixed Grill?
Schrijf je in voor onze nieuwsbrief en ontvang één keer per maand de beste tips over kunst, cultuur, reizen en lifestyle direct in je inbox.
